1.點擊下面按鈕復制微信號
點擊復制微信號
上海威才企業管理咨詢有限公司
嘔心瀝血的設計卻被現場人員罵?
老板罵人:競爭對手的公差比咱大,質量卻比咱好,你們是干什么CD?
測量合格不能裝配 ?
不合格零件卻可以裝配 (又來找研發簽字,讓步放行?)
工藝和質量打架——因為圖紙有兩種測量方法——讓研發說誰對?
工藝沖著研發叫囂:這是工藝基準,你懂不懂?
終于量產發現重要功能失效
公差到底多少,有公式嗎?有技巧嗎?有人教嗎?
……
當我們國內企業還在忍受諸多沖突的時候,國際公差的應用水平早已不是我們大學時代的十四個符號了,甚至公差四大家族族譜(課程中有介紹)內容也無法完全涵蓋。
本課程將歐美標準(ASME Y14.5/.ISO 1101,ISO8015,ISO2692, ISO 5459 等)的理論體系與大量企業實際案例結合,完美并系統的展現公差應用的邏輯、經驗和技巧。
那么,企業如何解決上面的諸多沖突的呢?
答:公差本身只是知識,超越公差之外的是應用邏輯、經驗和技巧。
那么,公差的應用經驗和技巧體現在哪些地方呢?
答:
1. 從更高的維度看公差系統的應用規律;
2. 設計思路;
3. 計算邏輯;
4. 功能導向的公差分配;
5. 確保功能條件下的最大化制造公差帶
6. 邊界條件與閉環驗證;
7. 公差信息規范化無誤傳遞。
那么,上課時可以對我們單位的實際問題進行講解嗎?
答:歡迎之致,鼓勵學員帶企業現有圖紙、產品和問題到課堂上來,直接進行講解,確保課程落地。
學員要求:
1. 必須具備機械圖紙閱讀能力 (已掌握幾何公差基礎知識);
2. 對公司產品基本概念熟悉;
3. 在設計或工藝或測量有2年以上實際工作經驗;
4. 建議需要將工作中的相關問題或問題圖紙,甚至實物(零件、工裝和檢具)帶到培訓現場;
5. 本課程技術性較強,為確保能照顧到每位學員,建議學員人數25人以內。
培訓目標:
公差符號四大家族族譜及查找方法
高級公差符號的應用
根據機械結構建立必要的幾何關系
科學計算最大允許制造誤差
功能導向的公差設計思維
實際有效設計邊界的設計思維
模塊化思維優化設計工作
公差檢測技術和檢具形成原理
第一篇 框架與邏輯
一、甄別功能要素 —— 控制對象
1. 控制對象:產品功能承載要素
2. 承載功能的機械形體
實體要素:對稱作用、中心要素
表面要素:規則表面 / 曲面
3. 三類形體應用的標注
成組形體
聯合形體:多個相同形體、全周、全形狀
部分形體:起止點、截面(橫、縱)、正反投影面
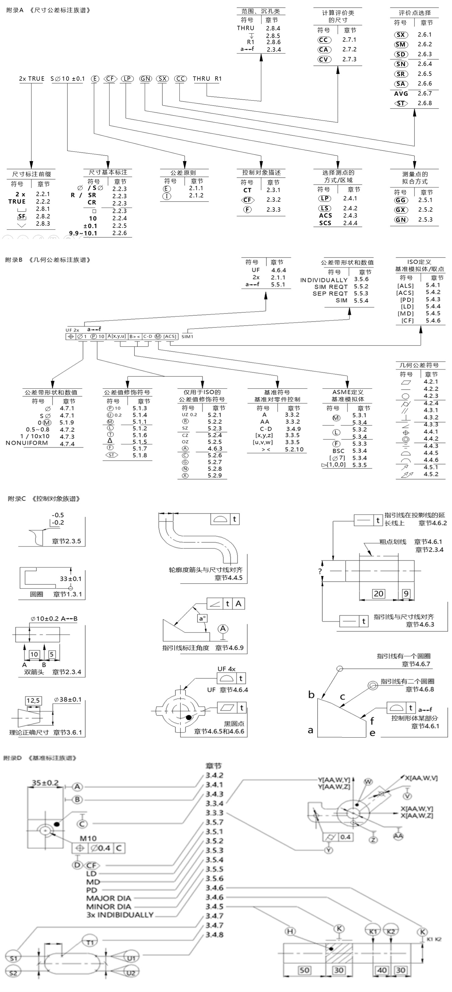
4. 《控制對象族譜》(見附錄C)
二、界定線性公差 —— 尺寸公差
1. 實體尺寸
標注規則
公差原則(包容/獨立/包容失效)
控制對象描述
評價規則
最大/小實體MMC/LMC
應用條件
功能
測量
2. 位置尺寸
實體尺寸和位置尺寸應用區別
對測量的要求
與制造的關系
應用條件
標注規則與要求
3. 方向尺寸
4. 形狀尺寸
5. 《尺寸公差族譜》(見附錄A)
三、厘清定位關系 —— 裝配基準系
1. 基準建立方法
模擬基準法
目標基準法
直接基準法
零件幾何關系PK測量基準
2. 基準系
基準順序
基準系與CMM測量
基準與設計、加工、檢測、裝配的關聯
3. 基準及基準系常見錯誤標注
經典案例
含糊的基準標注
一張圖紙有兩種測量方法
基準錯誤對零件檢測的影響
4. 《基準族譜》(見附錄B)
四、匹配幾何公差 —— 公差帶綁定基準系
1. 層級分類
跳動:跳動、全跳動
位置:位置、同軸、對稱、線/輪廓度
方向:垂直度、傾斜度、平行度
形狀:平面度、直線度、圓度、圓柱度
2. 應用邏輯關系
跳動>位置>方向>形狀
跳級測量
圓柱度管控圓度
圓柱度管控直線度
平面度管控直線度
位置度替代同軸度和對稱度
輪廓度管控平行度
跳動管控位置、方向和形狀
3. 各符號的公差帶和評價標準
檢測:模擬最嚴苛的裝配狀態
移動與轉動
位置度與檢測
輪廓度與檢測
4. 常用公差修飾符號
同時要求原則SIM REQT
非同時要求原則SEP REQT
不對稱公差U圈,UZ
最大實體補償MMC
基準補償MMB
正切平面
延伸公差區域
自由狀態F圈
CZ
可逆原則
零公差
5. 四大護法共舞
共舞
6. 《幾何公差族譜》(見附錄D)
第二篇 案例與應用
1. 視圖秘笈
真命天子
明碼標價
2. 功能導向公差設計
功能與裝配
風險分析
有效數據
3. 實效邊界
概念形成原理
位置度應用案例
輪廓度應用案例
4. 組合公差帶
相對位置(互為基準)
孔組合
面組合
5. 功能檢具形成原理
位置度檢具
輪廓度檢具
基準補償的檢具、專用表格
6. CMM與幾何公差完美結合
7. 復合公差應用
復合公差應用
8. ISO與ASME版本及區別


聯系電話:4006-900-901
微信咨詢:威才客服
企業郵箱:shwczx@shwczx.com

深耕中國制造業
助力企業轉型
2021年度咨詢客戶數
資深實戰導師
客戶滿意度
續單和轉介紹